外観
山陽ビル2号館SANYO BUILDING 2

ランドマークになるアルミ外装
駐車場付きコンパクトオフィス
駐車場付きコンパクト
- タカノ橋商店街、広島市役所が
徒歩圏内 - 駐車場付き、コンパクトな
オフィス空間 - 電車・バス・車両のトリプル
アクセス - スタイリッシュなアルミ
外装パネル - 国道2号に面した利便性の
高い 角地
建物の特長FEATURE
設備概要FACILITY
建物概要OVER VIEW
| 名称 | 山陽ビル2号館 |
|---|---|
| 所在地 | 広島市中区大手町5丁目2番22号 |
| 敷地面積 | 532.61㎡(161.11坪) |
| 延床面積 | 3,106.82㎡(939.81坪) |
| 貸室面積 | 2,395.21㎡(724.55坪) |
| 主要用途 | 事務所、ショールーム |
| 構造 | 鉄筋コンクリート造 |
| 階数 | 地上9階、塔屋1階 |
| 天井高 | 基準階2.60m |
| 空調設備 | 各階空調方式 |
| 衛生設備 | 各階男女別トイレ、湯沸室設置 |
| 昇降機 | 乗用2台 |
| 防災・防犯 | 屋内消火栓設備、自動火災報知設備、非常用照明施設、セキュリティカード方式で24時間使用可 |
| その他設備 | 全館LED照明、自動販売機、OAフロア、貸会議室、新耐震基準 |
| 喫煙室 | 1ヵ所(6階) |
| 駐車場・駐輪場 | 立体駐車場59台、近接立体駐車場「竹丸ガレージ」33台 |
| 電源 | OAフロア:電圧1φ100/200 / OAコンセント容量 容量50VA |
| ネット環境 | 光ファイバー供給地域、個別引き込み |
| テレビ | 全室テレビ共聴アンテナ |
| 竣工 | 1991年7月 |
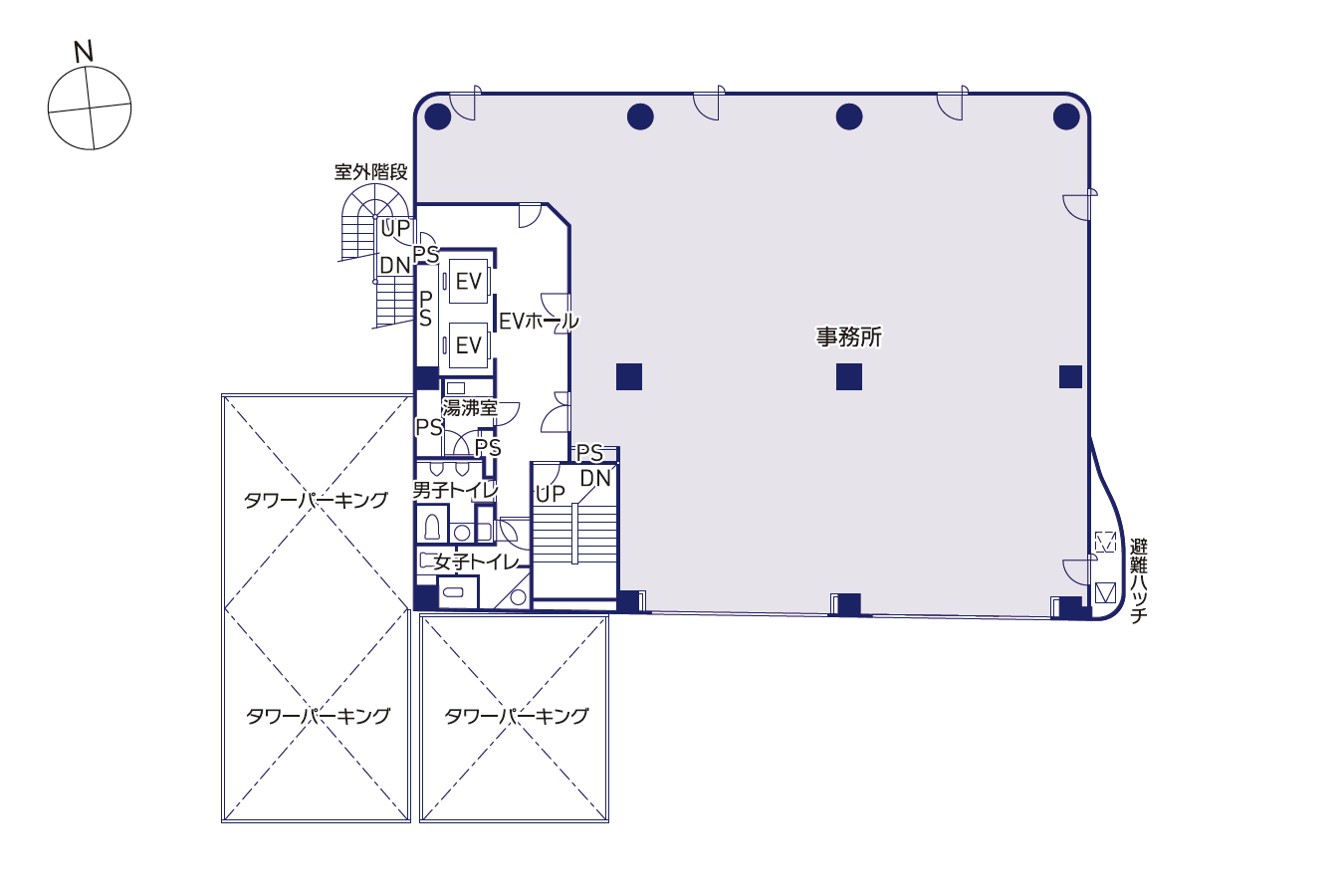
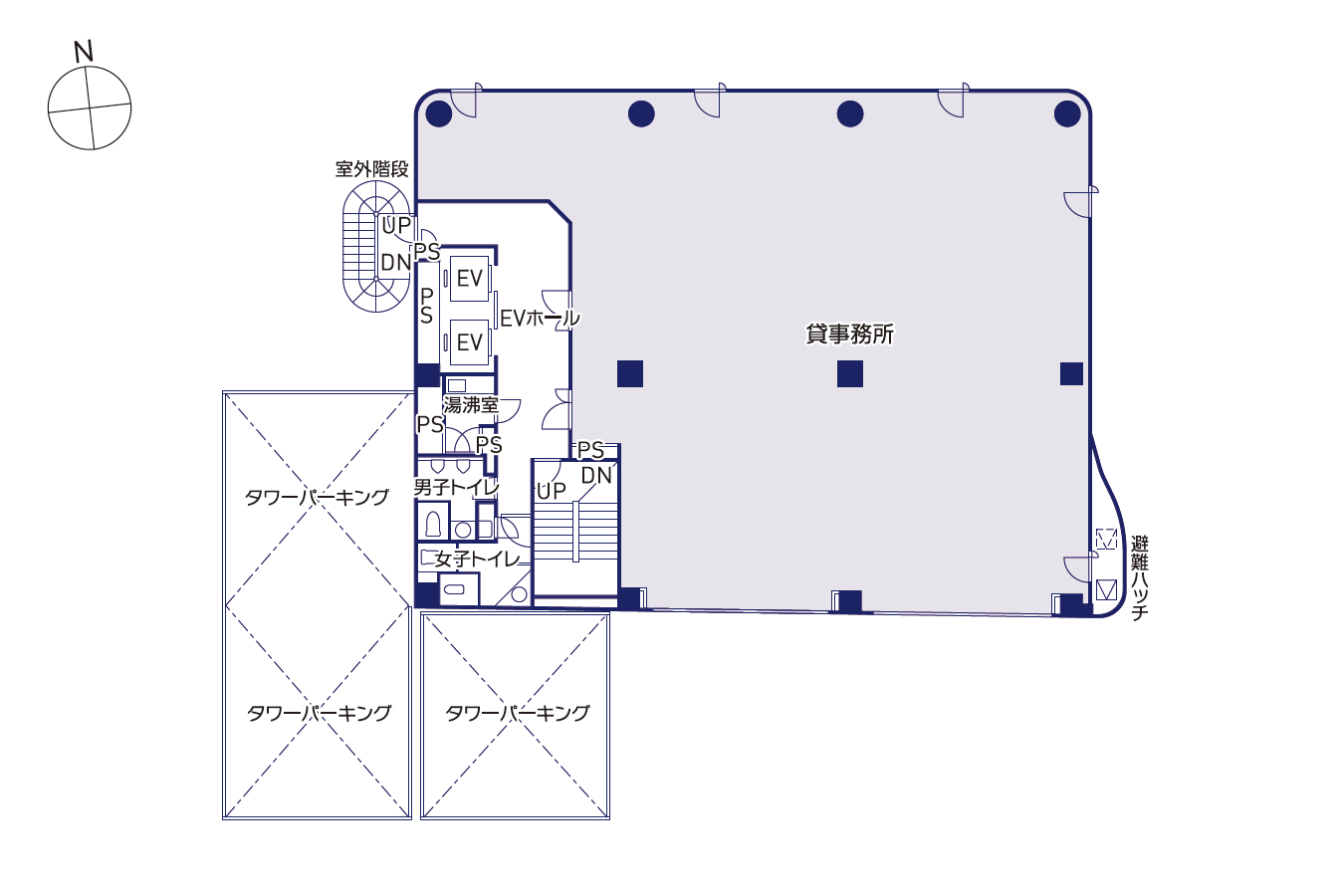
フロア情報FLOOR MAP
PDFをダウンロードして詳しく



